Дом 221 из бревна
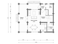
Проект дома с мансардой из оцилиндрованного бревна площадью 146,9м² и габаритами 10,7×8,7м. Построим этот дом для Вас в Ленинградской области.
| Площадь: | 146,9м² |
| Габариты в осях: | 10,7м × 8,7м |
| Этажность: | с мансардным этажём |
| Технология: | оцилиндрованное бревно |
Оставьте запрос, если Вас заинтересовал этот проект.
Кстати, можно бесплатно изменить этот или заказать индивидуальный проект с подходящей Вам планировкой.
Фото сруба по этому проекту
Видеообзор сруба с мансардой
Укомплектуем объект системой очистки стоков






